
Disclaimer: Any views expressed by individuals and organisations are their own and do not in any way represent the views of The Heritage Portal. If you find any mistakes or historical inaccuracies, please contact the editor.
As many readers may know, Somerset House in downtown Johannesburg is being restored by OPH under the guidance of MayatHart Heritage Consultants. The building was built in 1906 for the United Building Society and included a banking hall and a safe deposit section. In addition to it being one of the oldest surviving bank buildings in the city (the Natal Bank Building is older), Somerset House is one of the few remaining glass roof galleried buildings in South Africa.
Inside Somerset House in 2012 (The Heritage Portal)
In 1972, the arcade which stretched from Fox Street to what is now Gandhi Square was closed and blocked off by a kitchen. It is wonderful to report that 45 years later this hidden arcade and heritage treasure has re-emerged. In the months ahead it should be opened up to be marvelled at by enthusiasts from across the country.
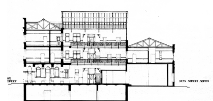
Longitudinal section of Somerset House showing the arcade and gallery (Doug Hindson)
The photographs below reveal how the building looked before restoration and now during restoration.
Fox Street Facade 2015 (The Heritage Portal)
Fox Street Facade 2017 (The Heritage Portal)
Fox Street Facade in 2015 (The Heritage Portal)
Fox Street Facade 2017 (The Heritage Portal)
Gandhi Square Facade 2015 (The Heritage Portal)
Gandhi Square Facade 2017 (The Heritage Portal)
High Court Building - also being restored - and Somerset House Gandhi Square Facade 2015 (The Heritage Portal)
High Court Building and Somerset House Gandhi Square Facade 2017 (The Heritage Portal)
Looking towards Fox Street from inside Somerset House 2012 (The Heritage Portal)
A similar shot from 2012 but showing more of the gallery (The Heritage Portal)
The Arcade from the Gandhi Square Entrance 2017 (The Heritage Portal)
The Arcade from Fox Street 2017. Note the original floor and wall tiles. (The Heritage Portal)
Comments will load below. If for any reason none appear click here for some troubleshooting tips. If you would like to post a comment and need instructions click here.
